Альбом типовых проектов индивидуальных жилых домов

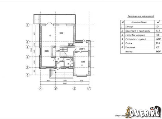
Этот альбом разработан Центральным институтом типового проектирования и градостроительства имени Я.В. Косицкого. В альбоме представлены наиболее яркие и красочные проекты жилых домов. Вы можете не только увидеть, как выглядит дом, но и подробно рассмотреть поэтажную планировку помещений.


Автор: Центральный институт типового проектирования и градостроительства имени Я.В. Косицкого
Год издания: 2007
Формат: pdf
Страниц: 183
Язык: русский
Качество: отличное
Скачать книгу "Альбом типовых проектов индивидуальных жилых домов" (122 МБ):
heruvim 03/10/09 Просмотров: 5053
0
